Deixa'ns el teu correu electrònic i setmanalment rebràs les notícies d'Argentona i actes d'agenda més destacats
![]()
Deixa'ns el teu correu electrònic i setmanalment rebràs les notícies d'Argentona i actes d'agenda més destacats
![]()

El proper diumenge 14 de febrer, Eleccions al Parlament de Catalunya, molts electors tindran un col·legi diferent al que fins ara era habitual, ja que, a causa de la pandèmia de la Covid-19 i per complir amb els criteris establerts pel protocol aprovat pel PROCICAT, s'han redistribuït els col·legis electorals i també s'han dividit meses electorals amb molts votants, per tal d'evitar aglomeracions a l'hora d'anar a votar.
El pavelló municipal, col·legi electoral principal
En el cas d'Argentona, el pavelló esportiu municipal, l'Escola Les Fonts i l'Escola Sant MIquel del Cros seran els tres col·legis electorals previstos per aquests comicis del 14 de Febrer.
El poliesportiu de la zona esportiva Rául Paloma, distribuirà les meses electorals a la pista antiga i el nou pavelló, que corresponien tradicionalment als col·legis electorals de l'antic Ajuntament, l'escola Bernat de Riudemeia, l'escola Argentona i La Sala.
ON HE D'ANAR A VOTAR ?
>> Pots consultar el teu col·legi electoral i la inscripció al cens al següent ENLLAÇ
Entre d'altres qüestions a tenir en compte a l'hora d'anar a votar, recordar que s'establirà una entrada i sortida diferenciada a cada col·legi electoral i que cada mesa comptarà amb una cua de votació independent i diferenciada que es formarà a l'exterior del col·legi.
>> SI HAS D'ANAR A VOTAR A L'ESCOLA LES FONTS O A L'ESCOLA SANT MIQUEL DEL CROS:
Plànol de situació ESCOLA LES FONTS (meses de votació al gimnàs de l'escola)
*Clica sobre la imatge del plànol per ampliar-lo
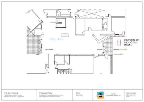
Plànol de situació ESCOLA SANT MIQUEL DEL CROS (mesa de votació al vestíbul de l'escola)
>> SI HAS D'ANAR A VOTAR AL PAVELLÓ MUNICIPAL:
Consulta la mesa i número de cua aquí.
Plànol de situació meses electorals PAVELLÓ ANTIC
Plànol de situació meses electorals PAVELLÓ MUNICIPAL (nou)
Col·legis electorals Argentona - Eleccions al Parlament 14-F
Total de meses electorals: 17
Total de col·legis electorals: 3 (Pavelló esportiu municipal, Escola Les Fonts, Escola Sant Miquel del Cros)
Total de cens electoral: 9.952 votants
Vot per correu
El termini per votar per correu a les oficines de Correus finalitza el proper 5 de febrer i que es recomana utilitzar amb motiu de l'actual situació sanitària. Si es disposa de certificat electrònic, també es pot demanar des de casa telemàticament i un carter va a buscar el vot a casa. Podeu consultar més informació aquí
Aquí podeu consultar més informació sobre el protocol de prevenció de la COVID-19 establert pel PROCICAT, novetats, així com la documentació de la convocatòria de les eleccions al Parlament.
